Method Statement for Anti-termite Treatment

Sharing is Caring:
85 / 100 SEO Score

One important activity on site is the application of Anti-termite treatment. By the way, this is always written in the specification.

This activity shall be done before the Blinding Works. But before we submit a Method Statement for this activity to the Engineer we should first read again the specification in order to comply with the specific requirements being written on it.

Anti-Termitetreatment

Application of Anti-termite

Here is the Method Statement for Anti-termite Treatment.

1. Title

Method Statement for Anti-termite Treatment

2. Purpose and scope

2.1 The scope of the work is a proper way of Anti-termite Treatment ( vertically and horizontally ) with the use of (approved Anti-termite Material ) on all concrete in contact with the soil.

3. Work Procedure for this Method Statement for Anti-termite Treatment

3.1 Preliminary Activities

3.1.1 Properly coordinate with the concerned party or main contractor on how the process will be done with regards to application scheduling and area preparation.

3.1.2 Coordinate and confirmation of people’s site access. And the water source accessibility on site.

3.1.3 The Method Statement ( MS ), Material Safety Data Sheet ( MSDS ), and Material Approval Request ( MAR)  must be on hand with the QA/QC Engineer before the commencement of the work.

3. 2 Preconstruction Activities

3.2.1 Remove all wooden pieces, concrete debris, plastic strips, tree stump roots, deleterious materials, etc.

Read also:  Method Statement for Liquid Applied Bituminous Waterproofing

3.2.2 The soil shall be leveled and compacted if in case the bottom of the blinding before treatment starts.

3.2.3 All construction-related tests shall be approved by the Engineer prior to treatment.

3.3 Construction Activities

3.3.1 Under PCC of Foundation

a. After the advice of the Engineer to proceed,  the application shall immediately begin by first preparing and mixing the solutions of Approved Anti-termite material diluted with water at a rate of 1:49 Liter water as per manufacturer’s recommendation.

b. A solution of approved Anti-termite material diluted with water at a rate of 1:49 Liter shall be sprayed prior to casting of blinding of footing or any foundation type with the application rate of 4 to 5 liter per square meter.

c. The treated area shall then be covered with a polythene sheet, it can be opened free until 2 hours, and then casting can be started. Casting must be completed by 2 to 24 hours after the Anti-termite treatment or application.

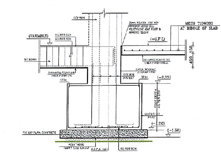
anti-termitetreatmentTYPICALDETAILOFFOOTING

3.3.2 Trench Around the Foundation Wall

a. Backfill the sides up to the top level of the proposed foundation ( considering that the height of the foundation will exceed more than 1 meter ).

b. Make a trench with 150mm width by a 150mm depth along the perimeter of the foundation.

c. A solution of Approved Anti-termite material diluted with water at a rate of 1:49 Liter shall be sprayed with an application rate of 5 -6 Liter per linear meter int the trench along the perimeter of the foundation.

Read also:  Method Statement for Dewatering

d. The trench shall be backfilled within 24 hours of treatment.

3.3.3 Under PCC of Tie Beam

a. A solution of Approved Anti-termite material diluted with water at a rate of 1:49 Liter shall be sprayed prior to the casting of PCC of tie beams with the application rate of 4 to 5 Liter square meter.

b. The treated area must be immediately covered by polythene sheet, it can be uncovered for 2 hours before casting. And casting must be completed by 2 to 24 hours after the Anti-termite treatment or application.

 

anti-termitetreatmentPolythene sheet covering

Polythene sheet covering

3.3.4 Underground Concrete Slab and Along the Side of the Beams

a. The trench shall be constructed with a measure of 150mm by a 150mm depth along the perimeter of the tie beams.

b. A solution of the Approved Anti-termite material diluted with water at a rate of 1:49 Liter will be sprayed prior to ground slab casting with the application rate of 4 to 5 per square meter.

c. With the same solution of Approved Anti-termite material, apply 5 to 6 Liter per linear meter into the trench along the perimeter of the tie beams. Backfill the trench after letting the termiticide subside within 2 hours. The backfilling must be done within 2 to 24 hours after the anti-termite application.

3.3.5 Along the Outside Perimeter of the Building

a. Make a trench, 150mm in width and 150mm in-depth, along with the external perimeter of the building at the same level of the landscape.

Read also:  Why Understanding About Method Statement Is Important To Engineers In Construction

b. A solution of Approved Anti-termite material diluted with water at a rate of 1:49 Liter will be sprayed into the trench along the external perimeter of the building with an application rate of 5 to 6 Liter per linear meter.

c. Backfill the trench within 2 to 24 hours after the treatment.

4. Safety

4.1 All works shall comply with the safety procedure or instruction as set out in project safety plan and municipality rules and regulations.

4.2 Basic Personal Protective Equipment ( PPE ) shall be worn by all staff or laborers.

4.3 All operatives shall be inducted before entering the site.

4.4 Toolbox talk shall be conducted before the activity.

5. Equipment and Tools

5.1 Power Sprayer (diesel-driven) fixed at the carriage of the service car

5.2 Spray Nozzle ( used to facilitate the formations of spray in the targeted area)

5.3 Personal Protective Equipment, Safety helmet, Safety gloves, Safety shoes, eye protection or goggles, approved respirator, and safety jacket.

6. Materials and Reference

6.1 Approved Anti-termite Material

6.2 Approved Shop Drawing or Sketch

So I am hoping that the above Method Statement for Anti-termite Treatment has brought information to the Engineers and if you have any comments please put your comments below. You may subscribe to get a new post in your inbox. Thanks for visiting this site.

Sharing is Caring:

79 Comments

Leave a Reply

This site uses Akismet to reduce spam. Learn how your comment data is processed.

You cannot copy content of this page